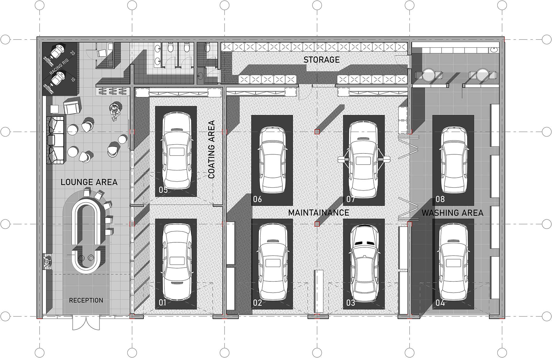
MOTUL GARAGE NETWORK 2022 is a project of Design Guidelines for a nationwide network of garages all over China. Its goal was to fill the niche of automotive service that would provide an opportunity for a quality time while waiting for car maintenance to be done. 
According to the concept - the place has to be relatively fancy underlining Motul heritage and race spirit. This network should become nationwide all over China, starting in Shanghai. 
Back to Top